
产品名称:Heavy-duty Traversing Servo Robot
产品型号:SHC-
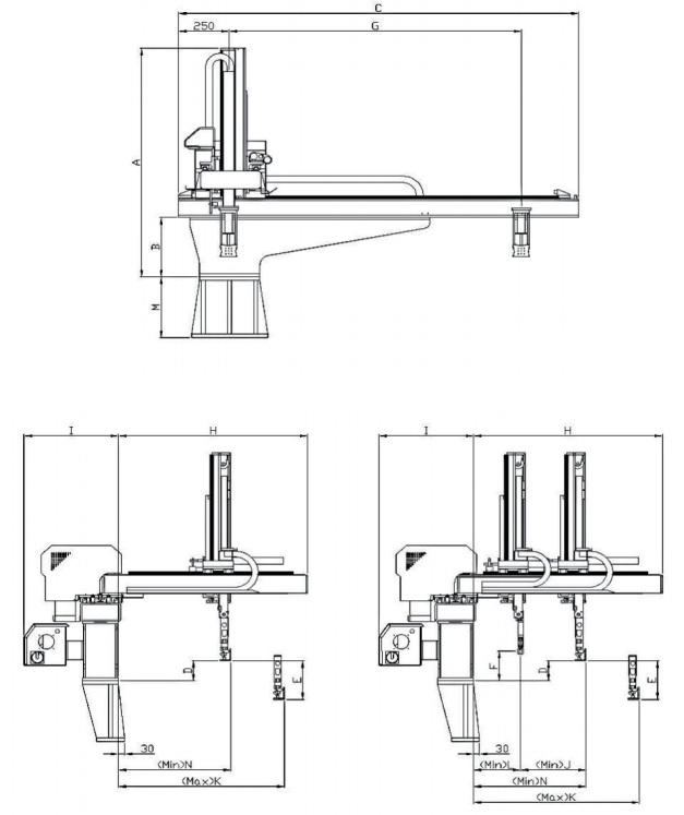
●Transverse axis is driven by high-performance servomotor drive, to meet the requirements of tast picking-up, pull axis, take out axis, using cylinder drive, more economical.
●Take out axis has two different types: single-stage and telescopic.
●Take out axis is with single-arm or double-arm model to meet different demands. (D) is a double-arm model.

