首页 关于斯曼尔 公司简介 荣誉资质 企业文化 工厂展示 研发&服务 产品中心 注塑机系列 干燥除湿系列 物料输送系列 冷热温控系列 粉碎回收系列 物料混合系列 机械手系列 自动化系列 选购附件系列 案例展示 动态信息 合作伙伴 联系我们 中 EN
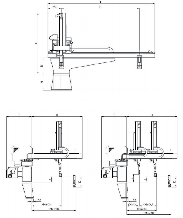
注塑机系列干燥除湿系列物料输送系列冷热温控系列粉碎回收系列物料混合系列机械手系列自动化系列选购附件系列 产品名称:单轴伺服重型机械手 产品型号:SHC- ●横行轴驱动使用高性能伺服马达、驱动,满足快速取件要求,引拔轴、取出轴,采用气缸驱动,更经济。 ●取出轴有单截双截两种不同形式。 ●取出轴有单臂双臂机型可满足不同需求,(D)为双臂机制。